
Shattuck Studios is a 22-unit, four-story, all-steel modular structure installed on a single-family-sized lot on Berkeley, California’s Shattuck Avenue. Steel exteriors were covered with rain screens onto which Parklex—engineered wooden siding made in Spain—was attached to give units a more conventional appearance. Small units on a 5,200-square-foot (483 sq m) site without parking yielded a density of 184 units per acre (460 per ha). Half the units overlook a 2,200-square-foot (204 sq m) community plaza that houses a shared automobile reached through a concrete breezeway and 22 bike parking places. (Panoramic Interests)
This article appeared in the winter issue of Urban Land on page 86.
The drive to make housing more affordable, especially in high-demand areas like the San Francisco Bay area, encourages developers to experiment with techniques new to the United States. San Francisco developer and ULI member Patrick Kennedy’s firm, Panoramic Interests, recently completed an all-steel module complex at 2711 Shattuck Avenue in Berkeley, California. Shattuck Studios is a 22-unit, four-story, 30-module structure that Kennedy says he undertook as a research and development exercise to determine whether there are advantages to using steel modules to lower development costs compared with both wooden modules and stick-built on-site construction.
Prefabrication
The prefabrication of multifamily buildings is still in its infancy in the United States. Most prefabricated multifamily buildings have consisted of wood-framed units that evolved from the products made by manufacturers of single-family, mobile, and modular homes. Panoramic Interests has experience with modular wooden units, having erected a 23-unit, four-story wooden modular complex at 38 Harriet Street in San Francisco in 2012. But Kennedy notes that the vapor barriers wrapping wooden housing modules are susceptible to tearing during transport and on-site construction, placing structures at risk of damage from water intrusion.
Until recently, few steel modular experiments were undertaken. A Seattle company, Blokable, built its first steel units at its factory in Vancouver, Washington, for a 24-unit project in Edmunds, Washington. And Austin, Texas–based Kasita is building units for a 24-unit steel modular project with a Denver developer. (Both producers were profiled in recent issues of Urban Land. See “Making Housing Attainable” in the Spring 2018 issue and “Make Room for Design in Manufactured Homes” in the Summer 2018 issue.)

CIMC-MBS uses its shipping container experience to design and build weather-tight units that can be easily transported through the global freight container network on ships, railroads, and trucks. The 11-foot-wide (3.4 m) blue modular units sit atop standard eight-foot-wide (2.4 m) containers stacked nine high. (Panoramic Interests)
Advantages of Modular Steel
Kennedy knew that steel containers have welded seams and are waterproof. Finding no American steel modular unit manufacturers in 2015, Kennedy contracted with the CIMC Modular Building Systems (CIMC-MBS) factory in Xinhui in Guangdong Province in China to build the Shattuck Studios units. That company is a subsidiary of the China International Marine Container Group (CIMC) based in Shenzhen, which is the world’s largest manufacturer of shipping containers, according to its annual report, which cites a 40 percent market share of the international container business and a 56 percent share of the dry marine container market. CIMC-MBS designs and builds steel units in a way that allows for easy shipment through the global freight container network on ships, railroads, and trucks. The units’ corner posts and joints are identical to those on shipping containers, allowing them to be stacked and lifted using the same equipment used for shipping containers.
Typical American modular units require carriage on a flatbed truck flanked fore and aft with oversized-load warning cars, requiring three drivers and adding to development costs. “The cost of trucking to Berkeley from the Port of Oakland was more expensive than the $2,000 cost per module of shipping from China,” Kennedy noted.
Kennedy had CIMC-MBS fit, finish, and furnish the units in the factory, installing bamboo flooring, HVAC units, stainless-steel kitchen appliances, and plumbed bathrooms. Living rooms include built-in wall-beds and sofas, wall-hung televisions, dining tables, and chairs. The traditional practice of bringing a succession of plumbers, electricians, carpenters, painters, and other subcontractors to the construction site, with each step separately inspected, adds complexity, time, and cost to development.
Self-contained steel modules built using container technology have another advantage compared with wooden modules. Like shipping containers, the steel modules touch only those above or below at each corner. The air spaces between them provide sound and vibration isolation. Solid unitized construction equivalent to containers, which must remain true and stable to withstand ocean voyages when stacked nine high or when suspended from cranes, bodes well for their stability during earthquakes. And the complete finishing of welded-steel modules inside a dry, environmentally neutral factory minimizes the potential liability for water intrusion and mold.
CIMC-MBS says it has built and delivered 25,000 steel containerized rooms for hotels, student housing, apartments, and offices around the world. Among the projects is a 2005–2006 student housing project consisting of 1,000 container units built for Dutch developer Tempohousing’s Keetwonen project of 12 five-story buildings at the University of Amsterdam. Developer Quinten De Gooijer said it was less expensive to build new, furnished containers in China and transport them to Amsterdam than it would have been to acquire and recycle used containers and outfit them there.
But importing modules from China adds other costs. When modular units are manufactured in the United States, they can be permitted and inspected by the state inspectors inside the factory, rather than on the construction site through the local building permitting and inspection process. Kennedy chose to send California inspectors and a construction manager from his local contractor to the Chinese factory, and Panoramic’s development director traveled to the Chinese factory eight times over two-and-a-half years’ time to supervise the process. Kennedy said the travel expense was less than the costs that would have been incurred by production delays.

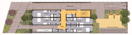
Click to zoom. Units at the Shattuck Studios project measure 310 square feet (29 sq m) and are contained within 32- and 40-foot-long (9.75 and 12 m) modules that are 11 feet (3.35 m) wide. A nine-foot-tall (2.75 m) concrete breezeway that leads to a courtyard was built to hold modules above it. The site measures only 5,200 square feet (483 sq m)—approximately 44 by 120 feet (13 by 37 m). A 2,200-square-foot (204 sq m) community plaza houses a shared automobile reached through a concrete breezeway. (Panoramic Interests)
Site Constraints
Multifamily modular construction introduces other constraints, depending upon the site’s location and size. Shattuck Studios were built on a single-family-sized, 5,200-square-foot (483 sq m) site (approximately 44 by 120 feet [13 by 37 m]) on Shattuck Avenue, a busy four-lane arterial road with no parking lane. Small units on a small site, without parking, yielded a density of 184 units per acre (460 units per ha). Even at that density, half the units overlook a 2,200-square-foot (204 sq m) community plaza that houses a shared automobile, plus parking for 22 bicycles.
Staging the delivery and installation of the aforementioned 30 modules required many trucks, a crane that Kennedy said cost $15,000 per day, and logistically difficult traffic diversion.
Scale
While Kennedy used smaller wooden and steel prefabricated solutions as learning exercises, he says that the key to realizing savings from prefabrication is to build on a much larger scale so that the added expenses of shipment, transportation, staging, and installation can be spread over many units. He is also a proponent of smaller, standardized designs that permit replication easily in a factory. Kennedy says that “one of the reasons housing is unaffordable is that it is 50 years behind auto downsizing that started with the energy crisis that began in the 1960–70s.” Despite the early efforts of auto manufacturers Henry J. Kaiser, founder of Kaiser Motors, to build housing in factories in the 1940s, and those of George W. Romney, the former chief executive officer of American Motors who served as secretary of the U.S. Department of Housing and Urban Development from 1969 to 1973, to support industrialized housing through Operation Breakthrough in the 1960–1970s, American efforts have paled compared with those in China, Japan, the United Kingdom, and Europe.
Design
Kennedy believes in designing units to provide the most efficient use of space in the smallest reasonable area. Panoramic builds test units in-house for each of its designs. For a San Francisco competition, it designed MicroPADs for homeless people that measure only 160 square feet (15 sq m) but contain a full bathroom, kitchenette, and built-in bed. The Shattuck Studios are larger, 310-square-foot (29 sq m) units contained within 32- and 40-foot-long (9.75 and 12 m) modules that are 11 feet (3.35 m) wide. A nine-foot-tall (2.75 m) concrete breezeway through to a courtyard was built to hold modules above it. Four modules on the ground floor and six on each of the top three floors contain 22 units. Eight more modules contain front and rear stairways and laundry rooms.
Panoramic builds in all its furnishings. At 38 Harriet, it built a six-foot-wide (1.8 m) bench under a window. The bench has a center section that can be elevated by a piston to convert the bench into a table and two seats. Kennedy says most American appliances require too much space to make units compact. He uses 18-inch-wide (46 cm) dishwashers and 50-inch-tall (1.3 m) refrigerators to create more usable space in kitchens. Built-in wall-bed/sofas create more living space. While furnished units may limit furniture-owning tenants, Kennedy said it simplifies move-ins and move-outs and it is desirable for master leasing.
Master Leasing
Master leasing to institutional clients can be attractive to both developers and clients. Kennedy said that not only eliminates market risk before development, but also makes it much easier to raise project equity and obtain debt financing. Lenders reward lower market risk and the higher creditworthiness of institutional client tenants.
Panoramic master-leased Shattuck Studios as graduate student housing to the University of California, Berkeley. The three-year lease gives the university a 20 percent discount, but the university is responsible for finding qualified tenants, arranging for move-ins and move-outs, collecting rent, and paying rent during transitional vacancies, as well as for one unit occupied by a residential assistant. The university rents the units to students for $2,180 per month, single-occupancy. Panoramic provides maintenance. At 38 Harriet, Panoramic master-leased its 23 units to the California College of the Arts, initially for $1,600 per month.
Economics
Panoramic builds smaller units in an effort to keep rents more affordable. Kennedy says, “Price is the best amenity. Less, but better.” The four-story Shattuck Studios project has no elevator, party room, fitness center, roof deck, or other trendy apartment elements. But it does have nine-foot-high (2.75 m) ceilings, engineered soundproofing, LED lighting, oversized showers, complete furnishings, 22 bike racks, a gear wall for hanging personal equipment, a community plaza, and a shared automobile on site. Its windows are oversized, its lighting is high-efficiency, and its plumbing is low-flow; its floors are sustainable bamboo wood and tile.
Surprisingly, even though the steel modules were transported from China, Kennedy said they represented only about 30 percent of the total development cost at about $160 per square foot ($1,800 per sq m), roughly $50,000 per module. He said that Panoramic incurred more than about 65 percent of the construction costs on site. The concrete breezeway on the ground floor added to site costs. Hallways, where all the utility connections were made, were finished on site. Steel module exteriors were covered with rain screens onto which Parklex—engineered wooden siding made in Spain—was attached to give units a more conventional appearance. A single-ply membrane roof was added on site. Foundation, sewer, water, plumbing, electrical, HVAC connections, and landscaping costs were incurred on site.
Access, staging, traffic management, crane operators, truckers, and special local inspectors added to on-site costs. Land costs, permitting, systems development charges, a required contribution of $500,000 to Berkeley’s Affordable Housing Trust fund, and other soft costs added to total development expense. Kennedy says he thinks total development costs are closer to $700 per square foot ($7,500 per sq m), or about $215,000 per unit for the compact units. He says that with the experience gained on the project and with a larger number of units over which to spread unusual costs, total development costs could decline. “Economies of scale do require projects of scale,” Kennedy says. “We need more units on larger lots.”
Although Panoramic has not yet decided to use steel modules on its 1,032-unit 500 Kirkham project, doing so may be advantageous. That project includes a 23-story tower and two eight- and nine-story mid-rise buildings. CIMC-MBS says that its technology allows for stacking self-supporting steel modules up to 30 stories high. With research and development experience now acquired, Kennedy is proceeding with optimistic caution: “I’m chastened by the complexity of doing something so seemingly simple as stacking boxes on top of each other. But we have to build housing more efficiently.”
WILLIAM P. MACHT is a professor of urban planning and development at the Center for Real Estate at Portland State University in Oregon and a development consultant.